Flywheel logo

August 2021

Birth of a Dream

By Paul Harvey

ABI Building Elevation

CPM has three very wonderful German Diesel engines: the Augsburg, the Benz, and the Graz.  All are from the early 1900s.  Hmmm, what better to do with them the erect a classic German powerhouse!  Now the fun begins.  What should that building look like?  Gosh, that’s going to be a big job.  Discussions, advice, searching for photos, and so much more.  So, it is coming together.  That dream is becoming reality!

These vintage powerhouse structures were absolutely beautiful, their details complementing the equipment inside.  The buildings and the engines were in perfect harmony with each other.  They were always a pleasant addition to any setting.  Typically, the outside walls were red brick with arched windows and doors.  The roofs were always red tile.  Floors were a characteristic black and white tile arranged in interesting patterns.  The walls displayed a glazed tile wainscoting and illumination was provided by carbon arc fixtures to brighten every nook of the building.  Wherever located, these installations were well accepted.  Industry complemented the environment.

German Powerhouse

The image above is one architect’s rendition of the building’s appearance.  CPM’s building will be very similar and will complement the environment just as the originals did.

Hmm? Wonder what will be inside? So, let’s have a look!

First engine is the Augsburg, donated to the museum.  Wow! Built in Augsburg, Germany, in 1903, it is the oldest operating Diesel engine in the world.  It is 12 hp and air-blast injection, coupled to a Siemens dynamo.  This engine once provided power to the elevator on the island of Helgoland.  In the 1920s it was acquired by Henry Ford for his museum.  When auctioned off then, it went through several owners before being donated to CPM.  It started the dream.  It will live again!

Augsburg Diesel Engine

The second engine is a 12 hp Graz, built in Graz, Austria, in 1904 under the Augsburg patents.  It drove a dynamo that produced electricity for a monastery and hospital in that city.  In a private collection since 1983, it will live again in CPM. Exciting!

Graz Diesel Engine

The final engine is a 12 hp Benz that represents about 15 years of German Diesel evolution.  Interestingly, it drove a crude oil pump near Lodi, Ohio.  Although not air-blast injection, it is a significant addition to the building.

Benz Diesel Engine

As with any significant addition to CPM, much planning needed to be done and a site had to be chosen for the new building.  Wow, what a job!  Look here and look there, and measure everything.  Consideration had to be given to what was already buried, such as gas and water lines, as well as proximity to access these utilities.  So finally, last fall we chose this site. Great!  The white lines depict a building either 30 feet long or 40 feet long.  The final decision was a building 30 feet wide and 40 feet long.  So now, lengthy discussions began with our contractor to choose a design both for the exterior and interior and to choose the materials to be used.  All was decided and drawings were made.  Construction started this spring!

ABI Building Layout

May 24, 2021, was the big day when the excavator moved-in and the dream began.  After waiting so long, reality happened.  Hmmm!  Looks like long-planned and wonderful things are now here.

ABI Excavation

So, let’s time-travel back about 100 years to take a peek at a couple of vintage installations.  The MAN engine rooms were meticulous and beautiful.  Impressive!  Look at the mounting levels, the floor details, the lighting, as well as all the interior details.  Yep, our plan includes the crane.  These structures were esthetically pleasing and complemented their surroundings.  My dream is to have the CPM venture do the same.

MAN Engine Room 1  MAN Engine Room 2

The original carbon arc lights posed a problem as very few are available.  So, the solution was to create our own!  The glass globes are available commercially.  Easy.  Then, with the help of many others, a typical base was created and will be molded from a special plastic resin.  Add an LED bulb and we are all set.

Arc Lamp Concept

Work proceeded well, with the footer being poured and the Augsburg foundation nearing completion.  I really enjoyed the colorful concrete mixer!

ABI Building Foundation  Concrete Mixer

But many other tasks need to be done in conjunction with the main project.  Soon, a water well will be drilled to supply the cold water for the compressor intercoolers for the air blast engines.  As a sideline, the well will be available for a small restroom in the future.  Also, an elevated steel tank is being restored to provide the circulating cooling water.  Then, a concrete sump tank and pump will be installed to complete the water circulation.  All is arranged and will happen soon.  All in my dream!

ABI Building Concept

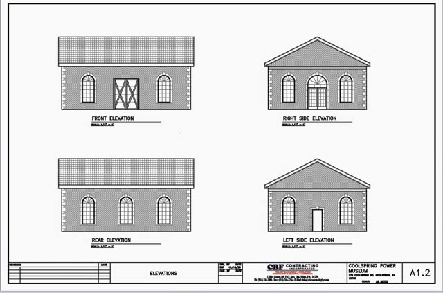
Here are four architect’s conceptions of the appearance of our powerhouse.  It is an exciting dream, and it is becoming a reality.  Wow!  A world-class exhibit at CPM.

ABI Building Foundation

As I write, the photo above shows the current progress, and more is coming every day! So good to live here and witness the construction.

So much happening, but my dream powerhouse is becoming a reality!  I hope you have enjoyed this visit to the MAN Powerhouse as much as I have writing it for you.  Come take a look and help me make a dream come true.

More to come!

 

Text Copyright © by Coolspring Power Museum